|
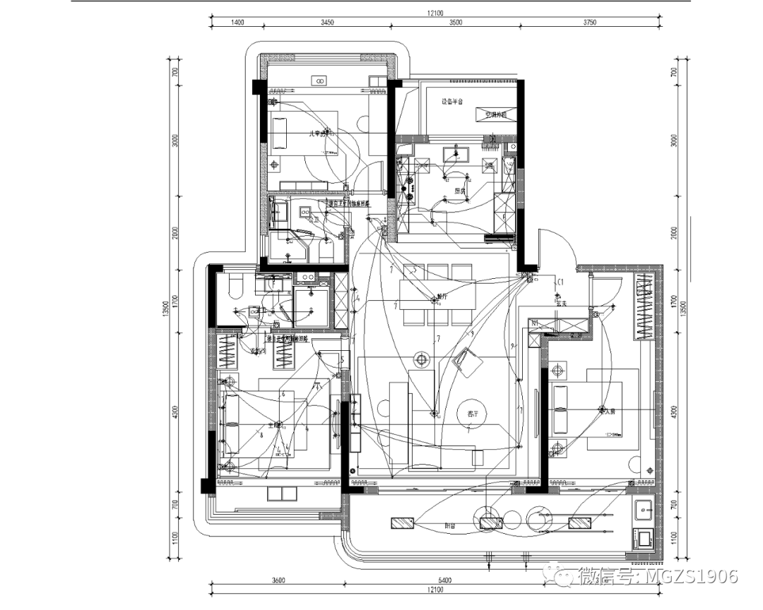
水电识图施工视频教程全套双联双控,三联双控照明平面图 如图所示:是照明平面图!图中是一个户型的照明平面图!是一个三房两厅,两个卫生间和一个厨房的商品房! 图纸中的电路线路复杂!有双联双控和三联双控控制!上面的视频有讲图纸怎么看! 
彩色图纸截图! 
我们可以对着这个图纸看看自己能不能独立看图放线!如果能,说明自己的电工基础已经过关!如果还不能,说明对双控开关基础还不够理解! 大家可以看一下我们的《Ti水电施工视频教程全套》 一共82课,课程中采用讲课图纸均是实际项目中的大楼盘图纸! 1:施工步骤 2:预埋定位尺寸(强弱电部分) 3:预埋看图定位 (预留排水洞口部分 )1 4:预埋看图定位 (预留排水洞口部分 )2 5:预埋识图篇排水预埋套管认识与选择 6:预埋识图篇看图定位施工以及注意事项 7:预埋识图篇之布管注意事项 8:预埋识图篇绑剪力墙注意事项 9:预埋识图篇防雷焊接注意事项 10:预埋识图篇排水预留洞如何看尺寸定位(有尺寸图)实例 11:预埋识图篇预埋布管哪些管子上插,哪些管子下插 12:识图安装篇 13:识图安装之电气平面图单位开关原理以及实际放线 14:识图安装篇之电气平面图识图之双位开关原理及实际放线 15:识图安装篇电气平面图识图之三位开关电工原理以及实际放线 16:识图安装篇电气平面图识图之四位开关电工原理以及实际放线 17:识图安装篇电气平面图单联双控开关原理以及实际放线 18:识图安装篇电气平面图双联双控,开关原理及实际放线单联三控和单联四控 原理 19:识图安装篇图例与设计说明 20:识图安装篇之电气系统图 21:识图安装篇之电气平面图识图 22:识图安装篇之动力插座图 23:识图安装篇看图预埋 24:识图安装篇二次预埋排堵 25:识图安装篇二次预埋之定位开槽 26:识图安装篇二次预埋盒子,配电箱,等电位联结端子箱 27:识图安装篇卫生间局部等电位为什么必不可少 28:安装篇看图纸放线 29:安装篇看图纸放线 2 30:安装篇看图纸放线 3(图纸对比) 31:安装篇看插座平面图放线 32:安装篇看系统图安装配电箱 33:安装篇看系统图安装配电箱 34:安装篇配电箱漏电保护器与空气开关原理以及接线方式 35:安装篇给排水图例与设计说明 1 36:安装篇给排水图例与设计说明 2 37:识图篇之给排水管道配件认识 38:识图篇之给排水平面图识图 39:识图篇之给水管道系统图 1. 40:识图篇之给水管道系统图 2 41:识图篇之给水热水循环系统 42:识图篇之热给水管道系统图 43:识图篇之前期预埋给水管道立管系统图 44:识图篇之水表安装高度示意图. 45:给排水大样图(给排水尺寸定位) 46:识图篇之排水管道系统图 47:识图篇之排水立管系统图(同层排水还是隔层排水) 48:安装篇标高建筑标高结构标高与相对标高 49:地下室给排水识图 50:地下室给排水设计说明 51:地下室给排水平面图识图 52:地下室给水池给水原理系统图 53:地下室生活水泵房给给排水平面放大图 54:地下室给排水平面图排水 55:地下室排水系统图安装示意图 56:地下室人防设计说明. 57:地下室人防给排水 58:地下室给排水识图(另一图纸) 59:地下室给排水识图(另一图纸) 60:地下室电气识图 61:地下一层动力平面图识图 62:地下室识图竖向干线配电图 63:地下室电气动力系统图识图 64:地下室动力平面图送风机房和排烟机房识图 65:地下室应急照明平面图 66:地下室消防应急照明系统图识图强启原理. 67:地下室消防应急照明系统图交流接触器与中间继电器 68:地下室消防应急照明配电箱安装 69:地下室二层动力平面图识图 70:地下室二层应急照明平面图 71:地下室电气识图(停车场) 72:地下室动力平面图(停车场) 73:地下室动力图系统图识图(有停车场) 74:地下室公共照明识图(有停车场) 75:地下室应急照明识图(有停车场) 76:地下室识图总结 77:弱电设计说明与图例 78:弱电平面图与系统图识图 79:弱电平面图可视对讲系统图 80:弱电平面图识图光纤与电视 81:弱电平面图识图视频监控 82:弱电识图总结 从课程目录可以看到 13到18课讲的都是电工基础开关原理与实际放线!其中包含双联双控!如果对上面那个图纸不理解!可以看看这套教程!这套教程通俗易懂,零基础也可以学! 
教程统统都在手机软件 大工建筑工程技术V3.0上面!软件已有 200课!一次性收费,永久使用更新!课程包含水电,桥架,消防还在更新!通俗易懂!除了有课程外还有VIP资源下载!很多很好的学习资料统统都在这里下载 
还有图解!支持离线!地下室,没网络的地方都可以看图解和用计算器! 


已经有非常多的同行朋友加入进来学习!除了有以上内容,还有售后群!学员群,不懂的地方都可以在群里问! 
看过我们教程的朋友都说好!下面是一部分评价截图 


教程统统采用现场施工图片结合详解!零基础一看就能懂,下面是部分视频截图! 










下面是两套教程的截图,现在优惠价 永久会员仅需 498 原价888!安卓版下载地址:http://www.tizs8.com/xi/Tivs.apk (复制浏览器打开下载,注意大小写) 




教程通俗易懂!包教包会!!! |